
MEZ Apartment

Nakos' House

Lego Play Factory

TMA Reception Desk

Gaku Downtown

Dai Due Amici

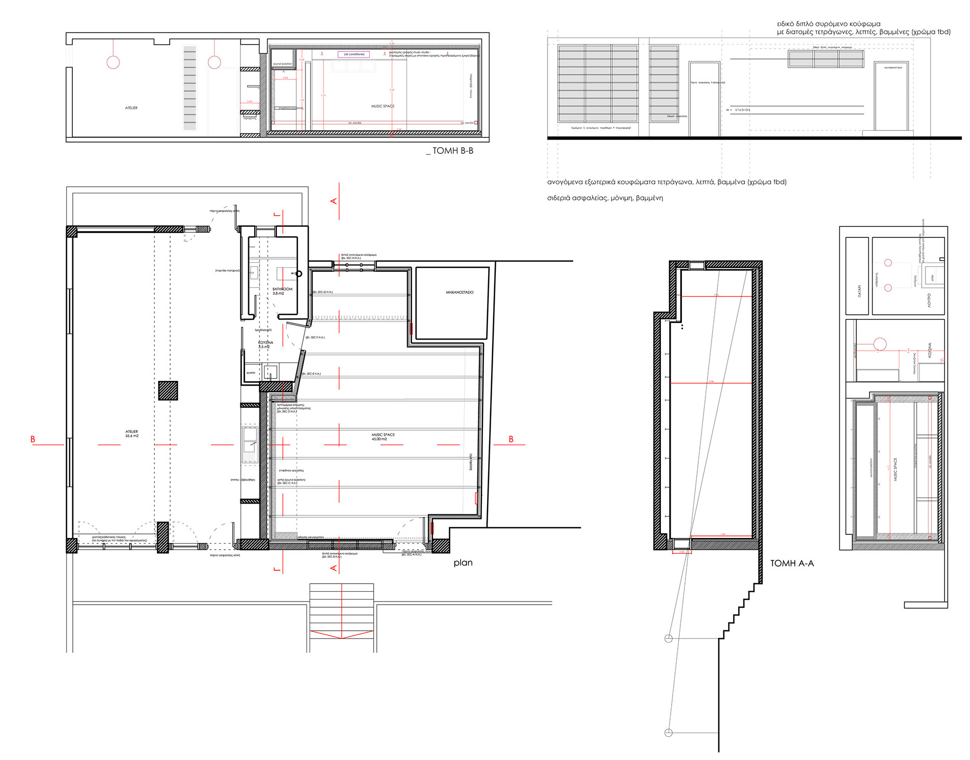
Y2 Studio + Lab

Gaku Izakaya

Residential Furniture Design