Landscape
Architecture
Interiors
About
Contact
[Client Login]
Landscape
Architecture
Interiors
About
Contact
[Client Login]
Stella Pantelia
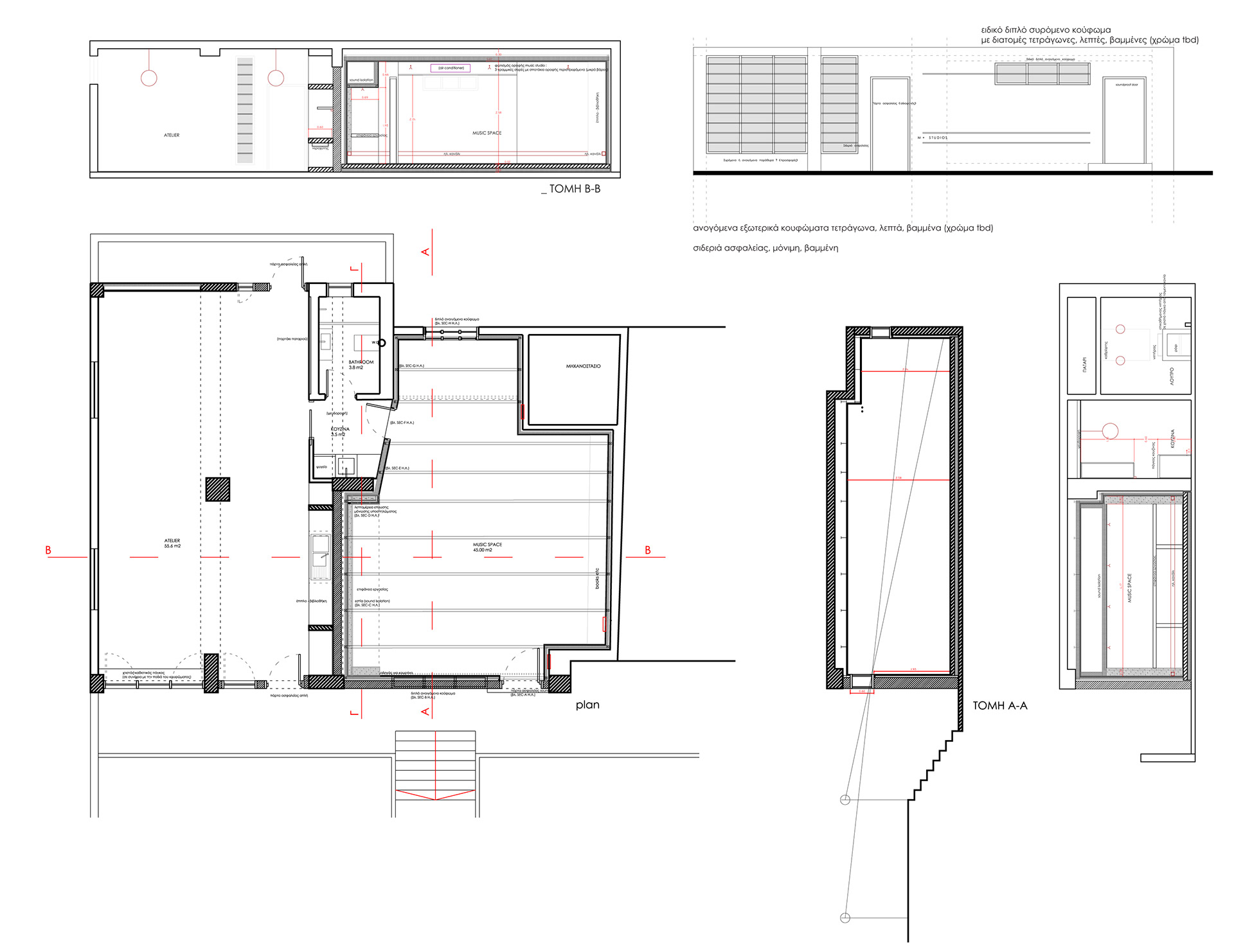
Y2 Studio + Lab
Music Studio and Lab for the Arts, Chalandri, 2012
↑
Back to Top